
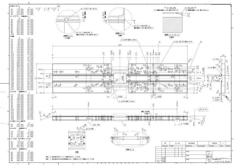
| 分类 | 金属零部件 |
| 品名 | 导轨 |
| 材质 | SUS440C |
| 尺寸 | 340×74×10 |
| 热处理 | HRC58 |
| 表面处理 | 无 |

| 加工精度 | 精孔±0.005,平行度0.01 |
| 抛光面表面粗糙度 | Ra0.2 |
| 交货时间 | 10天 |
| 加工应用范围 | 自动化设备搬送部 |
| 加工工艺 | 铣床开粗⇒热处理⇒研磨加工⇒线切割加工⇒精加工⇒抛光 |
| 材料选择 | 选择SUS440C作为导轨的原因主要在于其卓越的材质特性,这些特性使得SUS440C成为制造导轨等高精度、高要求零部件的理想材料,具体来说有如下几个方面: 1. 高硬度与耐磨性:SUS440C的硬度通常在HRC58-HRC60之间,经过特殊的热处理,其硬度甚至可以达到更高水平。这种高硬度特性使得SUS440C具有出色的耐磨性,能够承受长时间的使用和摩擦,保持导轨的精度和稳定性。 2. 优异的防腐蚀性:SUS440C是一种高合金化的不锈钢,含有高达16-8%的铬元素,这使得它具有很强的抗锈能力和耐腐蚀性。在潮湿、腐蚀等恶劣环境下,SUS440C导轨能够保持其性能稳定,不易受到腐蚀和损坏。 3. 良好的高温尺寸稳定性:SUS440C具有较好的高温尺寸稳定性,能够在一定范围内的高温环境下保持尺寸的稳定,不会因温度变化而产生显著的变形或膨胀。这使得它在制造需要承受高温的导轨时具有很大的优势。 4. 易于加工与打磨:尽管SUS440C的硬度较高,但通过合理的切削工艺和工具选择,仍然可以进行车削、铣削、钻孔等加工。同时,SUS440C相比其他碳钢更易于打磨,手锯切料也较为轻松,这有利于在制造过程中对导轨进行精细加工和修整。 5. 广泛的应用领域:SUS440C因其出色的性能而被广泛应用于制造刀具、轴承、医疗器械等高强度、高精度的零部件。在导轨制造中,SUS440C同样能够发挥其优势,满足各种复杂和苛刻的使用要求。 |